Latheguard - Medium

$249.00
SKU 13061

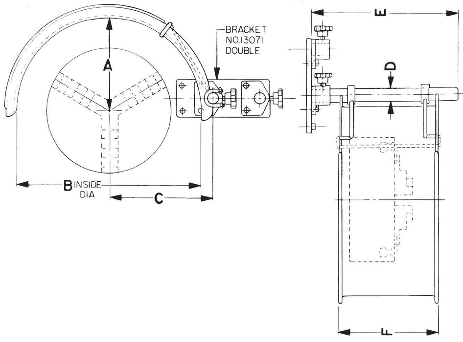
Clear LEXAN, Semi-Circular Wrap-a-round Guards

  •  Heavy duty cast mounting bracket supplied
  •  Heavy duty chrome-plated extension tube and hardware
  •  Ready to mount; all you do is affix mounting bracket with two screws.
  •  Back of shield is reinforced with plated wire form housing
  •  Locks in swing away or functional positions
  •  Accepts 3 or 4 jaw chucks

All Latheguards supplied with a 13070 Mounting Bracket.